1. 供 电:DC12V1A。
2. 显 示:5位LED超亮显示,6个状态指示灯。
3. 阀 门:12V单稳态电磁阀,耐压<7kg。
4. 环境要求:温度:0-80℃,湿度:0%-100%。
5. 网络: 485/WIFI/蓝牙。
6. 计费方式:计时/计量兼容。
7. 费率管理:网络下载/费率下载卡,最多支持100个身份。
8. 充值方式:现金充值/手机24小时实时充值。
9. 控制方式:刷卡控制/手机支付控制(WIFI/蓝牙)。
10. 读卡种类:S50,S70,CPU。
11. 防水等级:IPX7。
12. 黑 名 单:离线20万/在线无限制。
13. 波 特 率:38400bps。
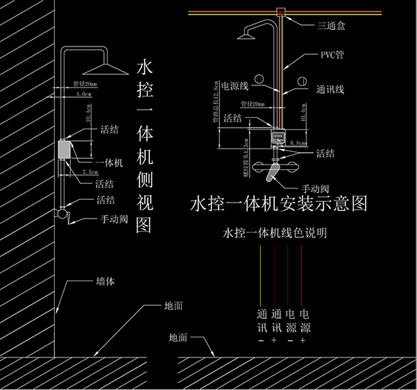
14. 外形尺寸:管路总长145mm,两端螺纹接头长度为12mm。
15. 安装方式:采用油韧(活接)水表式安装方式,下进水上出水。
16. 应用场合:学校,工厂公寓浴室。




